1.烧结装饰砖的定义和包含范围
我国现行标准GB/T18968—2003《墙体材料术语》中规定,烧结装饰砖(fired facing brick)是指经焙烧而成用于清水墙或带装饰面用于墙体装饰的砖;烧结装饰多孔砖(fired facing perforated brick)——是指经焙烧而成用于清水墙或带装饰面的、用于墙体装饰的多孔砖。饰面砌筑砖(facing brick)——带有装饰面的砌筑用砖。
烧结装饰砖在我国砖瓦行业的通俗叫法为“清水墙砖”,在西欧及世界上许多发达国家和地区已经非常规范的称为:“Facing Brick”,其含义中就有建筑物表面使用的、带有装饰功能的砖。在有些文献中将其译为“面砖”或“饰面砖”、“墙面砖”,这与陶瓷行业墙地砖的叫法混淆了,也将其用途没有正确表达出来。实际上,“Facing Brick”是范围非常大的一类产品。这类产品的外观质量高,尺寸准确程度高,耐久性(耐候性)及抗冻性好,其色调和规格尺寸可满足各种特殊要求以及建筑的造型要求。这类产品也可分为承重用的实心砖及多孔砖;非承重用的空心砖等。从成型方法上也可分为挤出和半干压成型。
2.烧结装饰砖在建筑上的使用方法
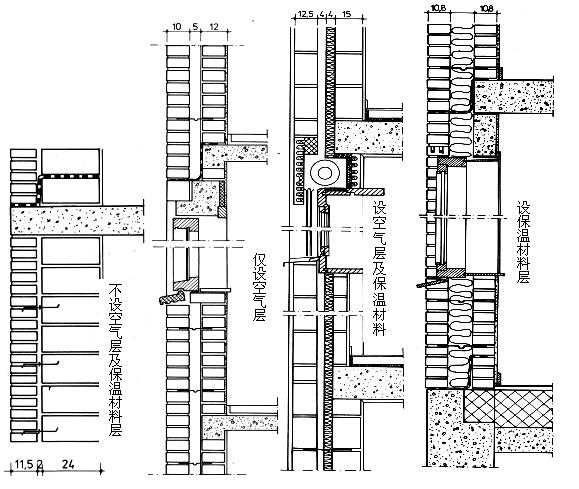
从墙体构造上讲,可用作单层外墙,也可用作复合层外墙。甚至于某些室内装修也用清水墙装饰砖,这在西欧也成为了一种室内装修的时尚。美国、比利时、荷兰、德国、英国、法国、意大利等及北欧国家、亚洲的南韩的清水墙装饰砖在世界上名列前茅。很多生产厂家有着自己产品的专用商标。对节能建筑而言,带有装饰功能的清水墙多孔砖砌筑的双层复合外墙有着非常大的实际意义。这种双层复合外墙是由里层用普通承重的多孔砖砌筑,外层用承重的、具有装饰功能的多孔砖砌筑,中间可设空气层、保温层,或不设空气层和保温层。设空气层的作用除增强了外墙体的保温隔热效果外,而且当外墙砖渗入或漏进雨水后,不会接触到保温隔热材料,影响保温隔热效果。为了保证保温隔热材料的性能不受潮湿空气的影响,在多风多雨地区还在其外部清水墙装饰砖墙上设置上下通风孔,使中设空气层中的空气能够流动,来保证砖墙的迅速干燥及墙体应有的热工性能。对节能建筑而言,带有装饰功能的清水墙装饰砖砌筑的双层复合外墙有着非常大的实际意义。这种双层复合外墙是由里层用普通承重的多孔砖砌筑,外层用承重的、具有装饰功能的多孔砖砌筑,中间可设空气层、保温层,或不设空气层和保温层。这种“夹心砖墙”的外墙结构体系在美国、西欧等国家应用的非常广泛。清水墙装饰砖的外墙结构体系的常见砌筑方式可见图1





图1 清水墙装饰砖夹心墙的常见砌筑方式((部分图片来自Wienenrberger公司;部分照片摄于德国、荷兰)
外墙用清水墙装饰砖现在发展的新动态就是薄的连结缝,薄的连结缝完全改变了建筑物的外貌。不再使用传统的砂浆,而是用专用粘结剂粘贴!传统的砂浆粘贴,将灰缝强加成为了墙面的背景,往往受到灰缝颜色和厚度的影响。用专用粘结剂粘贴的薄层灰缝连结技术,所使用的砖成为栩栩如生的背景,不再受灰缝颜色和厚度而影响整个墙面效果。这就形成了大面积的、均匀色彩的表面。用传统的砂浆砌筑时,灰缝要占墙面总面积的25%,而薄灰缝连结方法,灰缝仅占墙面总面积的4~6%。这种技术和技术诀窍目前主要是在比利时和荷兰得到发展,而且在实际使用中的实验一直是成功的。薄灰缝粘结技术在欧洲有着巨大的潜在市场,也会带来全新概念的设计。由于清水墙装饰砖有非常大的色彩变化范围和种类,所以不同类型的粘结砂浆也将会被开发出来,也将会创造出不同的应用方法。图2为这种薄灰缝清水墙装饰砖的施工方法及装饰效果。

3.清水墙装饰砖在建筑上应用的优势
清水墙多孔砖复合墙体及高度隔热保温砌块的发展代表着住宅建筑从低级向高级阶段的过渡。清水墙装饰砖的表面装饰方法就是指在产品生产过程中或是已烧成产品的表面上,进行加工处理或是专门附加上有装饰效果的表面,以提高产品的附加值,增强产品的市场竞争能力,或是说为了降低建筑物造价(不需要墙体外粉刷、粘贴外层装饰材料等),美化建筑物外貌,提高砌体的耐久性等。
清水墙空心砖复合墙体及高度隔热保温砌块的发展代表住宅建筑从低级向高级阶段的过渡。清水墙承重多孔砖和普通承重多孔砖组合砌筑形成的夹心墙砌体的热工性能非常好,在西欧各国对这种结构形式已有了专门的叫法,“Double
—leaf brick masonry”,直译过来叫做“双连(片)砖砌体”,通俗的叫法是“夹心砖墙”。里外两片墙之间由不锈钢(或其它种类)的锚固件连接,其结构的安全性能也很好。这种结构形式在北欧使用的非常普遍。这种结构不但充分的利用了烧结的清水墙多孔砖耐久性好,表面纹理及色泽丰富多变,装饰功能好等特点,而且完全消除了寒冷地区取暖期中建筑物上出现的“热桥”现象及室内结露造成室内粉刷层或是装饰层霉变或脱离的缺陷。室内装修、防火、保温材料的防水等问题也随之消除。更重要的是这种结构体系节能效果非常显著,在2001年的德国《砖瓦年鉴》中,已将这种结构体系纳入了现代绿色建筑(Green Building)的范围内。世界上清水墙装饰砖生产及应用最广泛的西欧国家为英国、荷兰、比利时、法国、德国、意大利、西斑牙、奥地利等;亚洲国家有南韩、马来西亚、日本、越南及我国的台湾;其他国家有美国、加拿大、澳大利亚等。我国自改革开放后已先后建设了7条清水墙装饰砖生产线。表1中给出了德国对这种结构热工性能的研究和实测数据。
清水墙装饰砖:传达着温暖、安全、亲密和信任。在色彩、形状、表面纹理等方面为设计和建筑美学提供了更宽范围的选择。她可将美观、传统和现在有机的结合;传统和现代之间的结合,传统和现代的表达是相同的,其使用场合不分室内室外,不分农村城市!

注:上表中的外墙用清水墙装饰多孔砖均为120m厚;里多孔砖墙厚分别为250mm,170mm厚。德国标准中规定,两砖墙之间的最大允许空间为150mm。
清水墙装饰砖夹心外墙体系在建筑上的优势:
1.陶质保护体(壳):清水墙装饰砖组成的外层墙,为建筑物提供了气候波动的全面防护,对建筑物抵抗热、冷及潮气提供了绝对可靠的保证,对火灾的防护安全。此外,对墙中部的隔热保温材料也起到了防水和防潮的作用,保证了隔热保温层的技术指标不降低(如受潮传热增大)。这种外墙保护壳显著地延长了建筑物的使用寿命。同时这种材料的耐候性非常好,在大气环境条件下,永不褪色,恰好相反,在太阳、风雨的影响下,其色彩变得更加引人入胜。
2.对热的防护:用清水墙装饰砖做外层墙的建筑物,在其室内总是有着舒适的温度。白天,外墙可储蓄来自外部的热,而在夜间才释放出储蓄的热。因而在夏季,外层砖砌体防止了房屋的过热,使人们感到凉爽(温度延迟时间长!)。
3.对冷的防护:冬季,室外冷,此时空心墙结构中的保温层就发挥了作用,室内的热量不易散失到室外。但是隔热层的“天敌”是水分(潮气),外层清水墙装饰砖保护隔热层不受潮,外界低温对室内温度的直接影响程度会大幅度降低!
4.对火灾的防护:清水墙装饰砖不会燃烧,因它们早已被烧过了。在建筑物内部出现火灾的情况下(如可燃性保温材料和室内的木结构),外层清水墙装饰砖可有效地阻止火的蔓延。
5.室内气候条件:因为清水墙装饰砖是一种陶质材料,它们对室内空间环境提供了舒适感。
6.水蒸汽的渗透性及水的密封性:水蒸汽能渗透清水墙装饰砖,而砖也吸收潮气,但是砖释放出吸收的水分也非常快。因此空心墙体系中的内墙面,在任何季节中都能保持干燥,从而保证了室内环境的舒适性。同时,陶质的砖表面几乎可完全防水,甚至在暴风雨期间也能防止水渗入墙体。
7.增加了对噪音的防护:夹心墙体系对噪音污染是非常有效的屏障,外层的清水墙装饰砖是第一层防护,在夹层中的空气层和隔热保温层是第二层隔离体,第三层承重多孔砖是噪音最后一道障碍物,因而这种夹心墙体系是有效的噪音屏障。
8.夹心墙体系是最佳的热储蓄及热平衡体系:夹心墙体系中高质量的砖提供了最佳的热交换和热平衡,特别是在外墙和内墙上的烧结砖良好的蓄热性能,保证了室内舒适的温度。
9.改善了墙体保温隔热性能:用夹心墙结构的新建筑物,能够达到墙体所要求的任何K—值,因为隔热层材料的厚度可变。此外,由于外层的烧结清水墙装饰砖有保护隔热保温材料长期不受潮的作用,可始终如一地保持着保温隔热的性能不会有大的波动。
10.硬壳——软芯特征:外层烧结清水墙装饰砖的“硬壳”保护着中部“软”的隔热保温材料层免受机械力和气候的影响,使隔热材料能保持其性能不变化。
11.使用寿命和保值:清水墙装饰砖一直被使用了数代人,并且还能继续服务于今后的数代人。清水墙装饰砖在使用中几乎没有维修,从而保证了投资的长期安全性,也能够使建筑物增值。其颜色不会因太阳或大气的影响而被漂白或褪色。
12.生活质量的决定因素:建筑材料选择正确与否,决定着生活质量的高低。数千年的历史经验证明,烧结质量好的砖瓦产品,永远不会丧失她的艺术魅力,不论是过去、现在,还是将来。后代人也必然会热爱烧结新型建材产品的美丽色彩,绝不会抛弃她!
13.夹心墙结构的建筑,在使用期几何不需要任何维修费:虽然夹心墙结构并不是非常昂贵的建筑,但是它所具有的优点很多,例如,使用寿命长、建筑室内环境舒适健康等。使用清水墙装饰砖的夹心墙结构,在使用数十年后,仅需要非常少的维修,而表面粉刷后再施加彩色涂料的墙面,在几年后就必须再次更新,如果更新不及时,墙面会变得越来越难看。在建设时,对外墙使用清水装饰砖的投资,从长远观点看来,是最好的节约投资的方式。这不仅是因为在使用期节约了维修费,而且在整个使用期大幅度地减少了能量消耗。
14.自然和谐,与大自然的亲和力强:烧结清水墙装饰砖及其它烧结新型建材产品,均是由自然界出现的无机材料制成的,因此她能够满足环境友好型建筑各方面的要求,如使用寿命终结后可全部回收利用(从目前所能够达到的技术水平上讲);产品的残存物不会影响水源质量,不会改变土壤的性质,不会影响植被生长(如使用得当,还会有助于植物的生长)等,对环境的负面影响极小!从这方面讲,几乎没有那种建筑材料可与之相比。南韩有关研究机构所做的生态方面的研究结果已充分地证明了烧结新型建材产品的生态学性能。数千年来,人们使用自然界的土壤、水、火与空气,通过成型、干燥、烧成砖,建造的房屋美观、安全、耐久而舒适。追求美观、安全、温暖、舒适、耐久是人类的天性,因而建设房屋时,大多数人首先选择烧结砖,并不是保守和落后,是天性使然,也是自然地回归!更何况现代社会条件下,对烧结新型建材产品使用功能的开发,完全能够使之满足可持续发展、循环经济、环境友好型社会等各方面的要求。
15.健康(大众、流行)的建筑材料:当人们选择建筑材料时,决定的因素不仅仅是材料大外表美观与否,而是它本身的内在质量。烧结新型建材产品的独特性能,数千年来都一直证明了她是最流行的建筑材料。这就是为什么现今欧洲五分之三多的建筑物使用砖的道理。烧结新型建材产品不仅经受了数千年历史和气候变迁的考验,而且她也能抵御热、冷及水的侵蚀,更重要的是有自动调节水分(湿度)和进行热交换的功能,从而创造了健康的居住环境。
湛轩业 供稿
版权所有:【河南欧帕工业机器人有限公司】
本站所有内容受知识产权保护 未经许可严禁转载、复制或建立镜像
中心地址:河南省郑开大道官渡组团 联系电话:0371-60863533
豫ICP备14017777号-3 营业执照 河南省互联网违法和不良信息举报中心

