最新信息更多>>
新型装配式隧道窑的设计实践
文献:《砖 家》 2017年12月 总第33期 返回索引
添加日期:2018/1/18 14:17:32 浏览次数:1825 文章来源: 作者:赵周民 许淑玲 苏晓辉
摘要:
装配式隧道窑是适应建筑模块化而迅速发展起来的烧结墙材工业窑炉,具有快速高效、节能环保、安全可靠等优点。该新型装配式隧道窑不仅有更为完善的工作和操作系统,而且在窑炉内衬结构和材料上具有开创性的研发,如对“组合式”高强耐火砖吊顶,大尺寸耐火混凝土墙板及其复合墙体的“铰连”,防止窑顶及外墙面过热的“断桥”结构等都做了严格的的理论计算和系统的优化并开展了一系列材性试验、结构实验和实体验证,通过工厂化装配和整体检测进一步完善了装配和操作规程。
1、砌筑式与装配式隧道窑的比较
隧道窑是现代烧结墙体材料工业最关键的热工设备。 其机械化和自动化不仅可以大幅度地减少了职工数量,而且减轻了从业者的劳动强度,方便了企业的生产管理。优质、高产、低消耗、低污染是现代隧道窑的显著特征。近年来随着烧结墙材工艺的不断优化和配套设备的日臻完善,隧道窑在国内外烧结墙材企业中已得到普遍使用并成为现代烧结墙材的首选。
但是传统的隧道窑的建设周期较长、施工节点多,如耐火及保温材料受施工环境和装备、施工方法的影响,其定位、砌筑、铺贴及填充水平参差不齐,实际工程量与预算量差异较大造成浪费甚至延误工期,使隧道窑的热工性能和使用寿命大打折扣。热耗高、污染大、产量难以达标也是现阶段隧道窑设计和运行中遇到的突出问题。据有关资料统计中国烧结砖瓦的烧结范围950~1100C,每千克制品的热耗约1600千焦,烧成周期在30~50小时,国内隧道窑的达产率在80%左右,如果严格执行烧结砖产品国家标准,达产率可能更低。而欧洲先进生产线的低温快速烧成隧道窑最高烧成温度仅在900度左右,每千克制品的热耗约1000千焦,烧成周期在30小时以下当然,这与欧洲以油气为燃料有很大关系。国内外实践证明烧成温度每下降100℃烧成能耗下降13%,烧成时间缩短10%。
为了解决传统窑炉建设和运行中存在的问题,经过多年的研究、设计和实践,世界各国相继开发了各种结构形式的装配式窑炉,除了在陶瓷工业得到较多的应用,已经拓展到化工、冶金、机械行业。所谓装配式隧道窑,就是采用工厂化生产将建设隧道窑时需要的窑墙、窑顶及其他辅助设施和配套系统设计并加工成几种标准单元,采用集约化运输,在厂房围护结构及隧道窑基础完工后施工现场组装即可;这样就解决了施工场地、气候、人员调配、材料运输对隧道窑建设工期和质量的影响。意大利莫兰多公司早在1980年左右就推出过配套装配式隧道窑的烧结砖生产线,但是后来因为市场及材料的制约该项技术没有得到很好的发展。
由于工厂化生产的装配式隧道窑几何尺寸精准,窑顶与墙体均为材料间镶嵌及耦合良好的复合结构,完全封闭体系操作(窑进出端均设有截止门),普遍配备二次能源或高效煤粉燃烧系统,每千克制品热耗控制在1050千焦以下。不仅能耗比一般砌筑式隧道窑降低30%左右,而且大副降低了温室气体排放。
装配式隧道窑兼备了传统隧道窑的工作系统,但其系统划分更严格,调控更准确,是耐火及保温材料与钢结构的科学组合与高效运用,其建造过程分为四个环节即:工程设计、工厂制造、包装运输、现场装配。其中耐火与保温材料、耐热钢和钢结构的耦合、适应集装箱的包装运输是装配式隧道窑设计的难点和核心。
现代化装配式隧道窑具有以下的特点:
a、 集成结构:装配式隧道窑的顶部和外墙均采用标准结构组件,窑上的所有重量全部由钢结构承担,组合好的各标准单元安装在先期做好的钢筋混凝土基础之上。为减轻窑体重量、降低地基承载要求及基础工程造价,采用耐火纤维作为保温材料;
为提高窑的稳定性和耐久性,装配式隧道窑的工作面(窑顶及窑墙)及曲封以下采用半重质或重质材料;在地下水位较低、雨水较多、地耐力低于60千帕的的地区,可将装配式隧道窑的基础置于预制桩基础的钢筋混凝土承台之上。
b、热工性能优异:装配式隧道窑采用绝热性能良好的耐火纤维保温,窑顶及墙体散热可降低25~40%,降低烧成温度100°C、缩短烧成周期~20%,减少焙烧热耗30%;同时稳定窑内的压力制度和温度制度,极大地改善窑炉的操控性,提高产品质量和产量。
c、由于采用工厂化生产,装配现场几乎没有固体废弃物;由于生产过程燃料消耗减少、燃烧强度降低,隧道窑排放的烟气、粉尘及窑体散热等都相应地减少。在改善工作环境的同时也减少了环境污染及污染的治理的费用。
d、改变了窑炉的建造方式:把依赖天气、土建进度、现场管理、交叉作业影响的建筑工地放到了有环境保障、设施齐全、专业完备的机械加工车间工厂化生产;将砌筑工程转化成了设备制造,大幅减少了人力资源成本和现场管理费用和风险,保证了装配质量、缩短建设周期。
e、生命周期长:目前市场采用的装配式隧道窑过度使用高级轻质耐火及保温材料,增加了工程造价;轻质材料的热机械强度及耐侵蚀性普遍偏低,工作面材料损毁,倒窑、窑车蹭墙等事故时有发生;有些配套装配式隧道窑生产线的工艺和燃料选择选择不当,影响了隧道窑的正常运行。因此,对于采用新型结构和材料的装配式隧道窑在控制其造价的基础上,要保证其使用寿命20年以上、维护周期大于3年。
f、拆装灵活:当原料枯竭、市场转移,产权转移时能够快速拆卸异地建设,极大地节约了建设资金盘活了固定资产。

正在搬迁的意大利装配式隧道窑(八十年代建造)
2. 装配式隧道窑的热工系统
2.1. 工作原理:
隧道窑是一种对制品热加工的连续工作的热工设备。窑内的各种变化很复杂,而且各种变化之间又有着千丝万缕的联系。坯体的烧成过程,就是燃料在窑内燃烧、坯体与高温热气体进行热交换、湿交换的过程。通过燃料燃烧产生的热量,将窑内的温度升高到坯体烧成所需要的温度,在烧成温度时,坯体内的各种组分发生物理变化、化学变化和矿化学变化。经过这一系列的变化,成为几何尺寸,抗压与抗折强度、抗冻融性符合国家标准的制品。
隧道窑属于连续化运行的热工设备,沿窑长度方向分为预热、烧成、冷却三带,在三带中依次完成对坯体的热加工过程。隧道窑两端均设有端门和截止门,按照进车制度,将装好砖坯的窑车按时推入一辆,相应装有已经烧成砖瓦成品的窑车被牵引出一辆。装有坯体的窑车进入预热带后,坯体首先与来自烧成带的烟气接触而被预热,坯体均匀升温的同时残余水分逐渐排出、,废气汇入预热带两侧的排烟孔,通过闸阀进入烟道被排烟风机排出;而后随着窑车移动进入烧成带,借助燃烧系统或内燃释放出的热量,达到最高烧成温度,并经过一定的保温时间,使砖坯被烧成制品;当烧成的制品运行至冷却带时,与窑尾部顶端鼓入的冷空气相遇并进行热交换,热交换产生的热气体约70%作为干燥介质被送到干燥室,部分作为助燃空气提供给燃烧系统、或作为热介质提供给急冷气幕。燃料和助燃空气经由烧成带顶部或侧部的燃烧器混合、燃烧并焙烧制品;被逐渐的冷却制品由出口牵引机出窑。
在隧道窑中,不管是内燃焙烧还是外燃焙烧过程,坯体和气流都是相向而行,烧成制品及废气的热量都得到了充分利用。因此,加入窑内的热量发挥了最大的效用,热效率较高。
2.2. 工作系统:
工作系统是设计者对隧道窑各功能区及其边界的划分,也体现了窑内的传热传质过程,是装配式隧道窑各带结构布置和管路系统等设计的依据。隧道窑各子系统功能复杂程度差异很大,但其核心组成是燃烧系统、通风系统(风机、管道及闸阀)、运转系统。
虽然生产砖瓦的原料是多种多样的,每一种原料及其产品烧结性能都有差异,隧道窑上的设置也有差别;但是隧道窑的系统大同小异,基本都具备了排烟系统、燃烧系统、冷却系统、余热利用系统、窑车运转系统、热工测控系统。装配式隧道窑只是界面更清晰,划分更严格、调控更精准、质量更优异。
装配式隧道窑的温度及压力制度接近于其理想状态即是隧道窑各种参数都处于最佳情况下绘制的曲线。而实际操作时,基于原料、产品、产量、气候、设备、管理等诸多因素的影响,温度曲线可能难以达到设定状态;但是,应该以设定温度曲线为准,根据差热曲线了解坯体吸热和放热情况,再通过综合判断,确定制品各阶段极限升温速率和最大加热速度,不断地计算、修正和调整工况,寻找烧成的规律,积累经验,使实际焙烧曲线逼近于设定曲线并成为新的“专家曲线”。装配式隧道窑内的压力制度,通常是指窑内静压的大小沿窑长度的分布,压力制度的控制是和温度制度密切相关的,通过变频调速控制压力的目的是为了保证规定的温度制度和气氛制度。
2.3. 结构:
基本结构:
装配式隧道窑土建工程由窑顶、窑墙、基础组成。由于受窑车及码坯和设备(摆渡车、顶车机、风机、出口拉引机等)的制约,将窑体划分为若干个标准单元。
钢结构包括两侧墙固定架和顶部固定架,窑顶固定架及耐火材料的重量由两侧墙固定架承担;每侧窑墙下部设置钢筋混凝土条形基础,基础断面中间部位设置钢筋混凝土轨道梁和铺设轨道。
窑墙安装在窑基础上部,从工作面向外依次为耐火材料墙板、硅酸铝纤维(高铝质+普通)模块,侧墙固定架及围护压型板。窑墙沿窑长由多块耐火墙板按顺序拼接而成,其后的耐火纤维保温层由耐火纤维模块组合。每块耐火墙板与侧墙固定架之间设置有耐热钢连接组件,耐热钢连接组件中设置有特种陶瓷隔热断桥。
窑顶由内至外依次为吊顶耐火砖、密封浇注层、高铝硅酸铝纤维毯和普通型硅酸铝纤维毯及顶部固定架。窑顶的耐火砖与顶部钢梁之间通过吊挂组件连接,而且耐火砖上铺设有密封浇注层,密封浇注层上铺设有高铝纤维毯和普通硅酸铝纤维毯,不但保证了窑顶的密封性,同时确保顶部钢梁与耐火砖、高铝硅酸铝纤维毯以及普通硅酸铝纤维毯隔离,使隧道窑内的热量无法传递到顶部钢梁上,降低了窑顶的热量损失。
对于窑顶和窑墙根据温度曲线会有相应的材料组合。
隧道窑的单元之间预留5mm膨胀缝,膨胀缝中加塞耐火纤维纸进行密封,以提高其密封性和绝热性。
窑顶:
窑顶对于窑的寿命有决定性影响。窑顶工作面耐火材料及吊挂组件不仅应长期承受高温产生的热应力,而且要满足施工载荷,设备载荷(燃烧系统、风管)的严苛要求。因此装配式窑顶:①材料的可靠性要高:耐火材料及保温必须经久耐用,吊挂组件必须高强质优以保证结构安全;②质量要轻:除工作面以外尽量少用重质材料,减少窑顶、窑墙钢结构的负荷;③标准通用:结构轻巧、拆装便捷、严丝合缝,可重复使用。
装配式隧道窑窑顶为平吊顶结构,窑顶耐火构件通过不锈钢吊挂机构吊在顶部的钢梁上。吊挂的方法有两种,一种是两块构件之间凹进和凸出的部分互相胶合形成一个整体,通过金属吊杆悬挂于梁上。另一种为窑顶上的构件都具有相同的规格尺寸,每块构件上都设置吊挂机构,每一块砖通过吊挂机构被吊在钢梁上,即使某一构件出现问题,也不会影响其它构件和整体结构。在吊挂砖和吊板砖上面涂抹20mm耐火密封浇注料、铺设耐火纤维保温层,顶部部分耐火吊板留有燃烧器喷枪安装孔(或投煤孔)和抽热风口。
小型装配式隧道窑窑顶可以做成整体模块打包后由集装箱运输,内宽4.6米及以上的大型装配窑的窑顶的超大规格钢件可散件包装运输,所有规格的窑墙和其他耐火及保温材料、风管及小尺寸钢构件由集装箱运输,现场装配。
平吊顶装配式隧道窑顶面平整度好,热膨胀产生的横推力很小,窑顶不会出现下沉。窑墙和窑顶之间用耐高温保温材料填充,由于窑墙工作层不承受窑顶的重量,窑体的稳定性好,有利于延长窑体寿命。采用平吊顶结构,便于机械化方法码坯和卸砖,砖垛与窑墙和窑顶之间的间隙小,有气流在窑内的分布更加合理,有利于制品的焙烧。
窑墙:
窑墙与窑顶形成的空间将制品与与外界分隔,在隧道内燃烧产物与坯体进行热交换。窑墙内壁温度约等于制品温度,外壁接触大气,温度较低,窑墙起保温作用。所以复合墙体应具备三上条件:①有很好的热强度;满足焙烧过程的热冲击和意外机械磨损和碰擦;②极佳的稳定性;保证结构安全;③高热阻;减少向外界散失的热量。
一般隧道窑的窑墙,通常由分为三层,最里层为与高温接触的工作层,常用耐火材料砌筑(200C°以下可用烧结普通砖砌筑),根据窑炉烧成温度,确定使用耐火材料的材质、等级、规格;中间层为保温层,由各种轻质保温材料构成,所选用的轻质保温材料既要绝热保温,又要保持长期安全使用而不损坏;最外层为承重保护层,多用烧结普通砖砌筑,用以保护轻质保温材料不损坏并承受窑顶荷载及采用拱顶出现的横推力。但是将几种技术性能、几何形状、施工方法差异很大的材料通过人工现场砌筑将其组合成一个热工及力学性能都很好的复合结构并非易事,现实情况是工作面重质耐火砖砌体一般能满足设计要求,其他施工中如轻质砖的砌筑、耐火纤维的贴挂、膨胀缝的留设、排烟及抽热孔的砌筑存在许多原则性的问题甚至致命的弊端。而这些问题都是砌筑式窑炉与生俱来的,仅靠设计和现场管理难以消除。
装配式隧道窑的窑墙是耐火组件工作层、耐火纤维(或耐火纤维+火山岩棉)绝热层、型钢及压型板围护结构三者镶嵌成的复合结构。窑墙各段耐火组件的材质和厚度是由该段的温度来确定的。每件耐火材料上的耐热不锈钢件穿过绝热层与围护结构上的型钢采用螺栓连接,为防止耐热不锈钢快速传热至围护钢板表层增加能耗和灼烧,耐热不锈钢设置有“断桥”结构;为保证轻质保温材料不受到破坏且窑体外形规整美观,外立面采用彩色压型板板围护。
装配式隧道窑窑墙的保温层厚度300~400毫米,耐火纤维模块容重容重可达150千克/立方米以上,而且工厂化、集约化生产的耐火纤维模块的张力作用防止了绝热层出现的任何疏漏,最大限度地保证其均匀性和密封性。由于窑体的保温性能极好,窑内温度场更加均匀,使制品的烧成同速度又非常快。因此不仅降低窑了燃料成本,不仅改善劳动条件,减少了大气中温室气体排放;而且提高产品质量,缩短烧成周期;延长隧道窑窑体使用寿命。
装配式隧道窑的窑墙是内侧耐火层采用高度方向为一块的高强度超大尺寸(1600×700×120mm)耐火混凝土预制板、耐火纤维模块保温层、型钢及压型板围护结构三者镶嵌成的复合结构。每个耐火混凝土预制板上的耐热不锈钢件穿过绝热层与围护结构上的型钢采用螺栓连接,为防止耐热不锈钢快速传热至围护钢板表层增加能耗和灼烧,耐热不锈钢设置有“陶瓷断桥”结构;为保证轻质保温材料不受到破坏且窑体外形规整美观,外立面采用彩色压型板板围护。
2.4. 材料
a、轻质莫来石砖
1、化学组成: Al2O3 :≥50% ; Fe2O3 :≤ 0.8%
2、体积密度: ~1.2 g/cm3
3、常温耐压强度: ≥ 8 MPa
4、抗热震性(1100 ℃空冷): 20次
5、荷重软化点(0.1MPa): ≤1450 ℃
6、热导率 w.(m.K) -1 (350℃) ≤1% (1550℃,12h)
b、轻质高铝砖(高铝聚轻砖)
1、 化学组成: Al2O3 :≥ 48%; Fe2O3:≤2 .0%
2、体积密度: 1.1~1.2 g/cm3
3、常温耐压强度: ≥ 4.5MPa
4、荷重软化点: 1350℃
5、热导率 w.(m.K) -1 ≤0.5% (平均温度350℃)
c、硅酸铝纤维(普通)
1、化学组成(%): Al2O3 :≥ 44; Al2O3+ SiO 2:≥96
2、容重(千克/ m3): 128
3、渣球含量 (%): ≤8
4、工作温度(℃): 950
5、加热永久线变化(1000℃,%): -4
6、热导率 w.(m.K) -1 : ≤0.085~0.11 (400℃)
d、硅酸铝纤维(高铝)
1、化学组成(%): Al2O3 :52~55; Al2O3+ SiO 2:≥99
2、容重(千克/ m3): 128
3、渣球含量(%): 8~12
4、工作温度: 1200℃
5、加热永久线变化(1100℃): -3
6、热导率 w.(m.K) -1 ≤0.156 (500℃)
e、火山岩棉
1、密度千克/ m3: 150
2、最高使用温度(℃): 600
3、热导率 w.(m.K) -1 ≤0.055(500℃)
f、吊顶内墙面及窑体曲封以下粘土质耐火砖
1、参考产品标准 N-2a
2、耐火度: 1740℃
3、荷重软化点(℃): 1350(0.2MPa)
4、抗热震性(1100 ℃): ≥25 次
g、窑车砌筑用黏土质耐火砖
1、参考产品标准 : N-1
2、耐火度: 1760℃
3、荷重软化点(0.2MPa): 1400℃
4、抗热震性(1100 ℃): ≥ 30 次
h、耐火混凝土
1. 矾土水泥:粘土砖粉:轻质粘土砖砂:轻质粘土砖块(体积配比)=1:0.33:0.33:1.07
2. 水灰比 0.8~0.77
3. 每立方米材料中水泥用量 460kg
4. 最高使用温度1300℃
J 、耐热不锈钢
1、材质 1Cr25Ni20Si2 1Cr18Ni9Ti
2、使用温度 1200℃ 900℃
3、常温抗拉强度 600 MPa 550 MPa
4、蠕变强度 ≥1.5kg/mm2(1100 ℃)
2.5. 操作
装配式隧道窑一般都配套有二次能源(重油、轻柴油、天然气,焦炉煤气、发生炉煤气)或煤粉燃烧系统,窑炉监控系统。产品一般为装饰砖瓦(道路砖、广场砖、清水墙砖、装饰瓦)。原料的精细化、产品的多样化和高端化对操控提出了更高的要求。普遍采用人机交互系统,更加精准、快捷。比如针对不同的原料、产品会有对应的焙烧曲线和操作管理规程,电脑切换即可。制品在隧道窑所经历的预热、焙烧、冷却过程会更加平稳、高效。高产、质忧、低耗、环保是装配式隧道窑的最大优势。一般情况下一座窑只配有一种燃料的燃烧系统,更换燃料,就要重新配置燃烧系统。比如天然气切换发生炉煤气原有燃烧系统就要做重新设计。
对于少数采用全内燃或外投煤焙烧的低端装配式隧道窑其操作与传统结构的隧道窑没有区别。除了加强焙烧过程有效的人工干预,一定要加强与干燥室的联调。当然,生产工艺、干燥方式是所有装配式隧道窑稳定生产的前提。精确计算、缜密设计、按图施工是窑炉达标运行的基础。
隧道窑预热带的操作是决定产品质量的关键,这是由于砖坯的预热效果不仅直接影响着烧成进度,而是也直接决定着制品质量的高低。倒窑与烧成裂纹大多与预热段操作不当有关。为了保证隧道窑烧成制品的质量,预热带操作必须重视以下问题。
第一、干燥进程的干预:预热带的功能是让坯体在设定的长度逐渐升温排出残余水分,平稳进入焙烧带。但是从焙烧到到达坯垛断面的热气流的分布取决于排烟风机的压力和流量、烟闸的直径和开启方式、产品及其码坯形式。在进车制度稳定、码坯形式确定、风机参数不变的情况下,正确及灵活用闸是控制温升的唯一途径。对于因工艺故障、干燥及天气而导致的过湿坯体(残余含水率大于6%)、高敏感原料制品、大型及形状复杂产品,除了改变或调整码坯,必要时要加大进车间隔,改变闸位来干预过程。
第二、干燥均匀性干预:在预热带断面温差达50~100C°甚至更高,坯垛上干下湿;排潮不畅,坯体受热后表层水分不能及时带走,而影响了水分的内扩散,拟制了干燥过程;由于垛身高度1.6~1.9米,底层坯体最大受压约0.3MPa;湿气下沉导致断面下部相对湿度高达90%以上,有时甚至会凝露;上述原因导致的变形、开裂甚至倒垛在所难免。传统生产线降低风险最好的办法:一是选择低敏感性系数的原料掺配并最大限度降低成型含水率,二是增加湿坯车静停线(有辅助的采光、供热、排潮和管理)、预干室或改变干燥模式(单层干燥),三是在隧道窑预热带前增加干燥带。隧道窑预热带的功能就是在有限的长度和时间上对坯体预热和升温,不能彻底消除高残余水分,更不能消除干燥缺陷,干燥的问题必须在入窑前彻底解决!实践证明单层干燥是最为有效的码坯方式并成为今后干燥设计的主流,至于用隧道干燥还是室式干燥又取决于产品和产量。其他措施虽然有一定效果但是仍然没有解决码坯方式和隧道窑预热带本身的问题。随着二次能源大量采用,新型高效煤粉燃烧系的出现,预热带低温烧嘴或气体循环成为行之有效的解决方案也成为装配式隧道窑的标配。
3. 装配式隧道窑设计及施工应注意的问题
a、 基础工程:装配式隧道窑窑体比传统砌筑式要轻约30%以上,对地耐力要求可从120千帕以上降至约100千帕;但是装配平整度要求精度高,必须控制在0~-3mm;预埋件要制造和埋设精准,钢结构最好留条孔以便与预埋件锚固,对于较轻窑体也可采用现场配钻,压板固定,但是精度要差一些。
b、 轨道安装:隧道窑的轨道选型要考虑其机械和温度蠕变,设计时参考窑车承载、窑车保温、最高烧成温度和燃烧方式。由于窑车接头或曲封部位热流泄漏、窑车热阻偏低、内掺量过大窑内过热导致的车下温度从设计的60℃上升至80℃以上甚至持续偏高,轨道的位移、延伸、变形时有发生,窑车蹭墙、卡车、掉道、倒窑在所难免。但是传统砌筑式隧道窑墙体厚重,有较强的耐受力,虽有破坏,不致损毁。对于装配式隧道窑的窑车蹭墙却是极其有害甚至是致命的,因此轨道选型要大一号设计以提供其抗蠕变能力;轨道加固件间隔要密集至700mm以内减少轨道弯曲;轨道中部下平面点焊小角钢且混凝土不得浇注轨道,以保证轨道沿中性面向两边自由伸张。
c、 码车、窑车及其砌筑:窑车是隧道窑里的最小单元,其几何尺寸主要取决于产品、码坯方式和焙烧方式。码车图确定了窑体的断面和窑车长度,考虑原料和产量就基本上确定了隧道窑的技术参数。具体设计顺序是:1)热工设计根据原料实验数据及《设计计划任务书》给定的产品大纲结合燃烧及码坯方式设计出码坯图;2)机械设计根据码坯图(主要是载荷及坯垛位置)设计出窑车钢结构图,当然参考相关热工图和工艺图也可设计出窑门、顶车机、出口拉引机、摆渡车、步进机等运行设备。先有码坯图后有窑车这是最基本的设计顺序;3)热工设计根据码坯图和窑车机械图合成码车图和窑车砌筑图。由于窑宽数量有限,现有大部分设计都是直接在成熟机械图上做码车图,但是校验环节必不可或缺。
d、 在隧道窑焙烧及运行过程中,透过工作面向窑墙及窑顶的传热是稳定传热过程即温度场不随时间变化而变化,所以正常生产过程工作面耐火砖几乎没有损毁;但是窑车及其码放的制品在窑车推移过程的传热属不稳定传热即温度场是随窑车的位置而变化的,车上制品温度起伏与焙烧曲线基本一致;窑车衬砖及保温材料从进车到出车经历升温与降温即吸热与放热,温差达1000°C左右;对于车上产品而言焙烧过程只是简单的“一次性装卸”,但车上衬砖在冷热交替的循环中逐渐达到其损毁的循环次数,而窑车衬砖的更换不仅会加大生产成本,而衬砖的损毁过程会影响坯垛的稳定性,加大了倒窑、窑车与窑墙碰檫的几率。近年来受造价的影响,一些厂商对窑车钢结构及耐火保温材料一再简化,车上载荷不断加大,热应力和超负荷导致窑车事故频发,严重影响了企业的生产和隧道窑的推广。
一般采用全内燃或外投煤隧道窑,其窑车衬砖的寿命在2~3年,如采用油气或煤粉焙烧,寿命在3~4年。传热方式、耐火材料、使用的燃料决定了其寿命的长短,传热方式是不可能改变的,而原料的选择对寿限影响不大。实践证明采用耐火混凝土和耐热混凝土复合结构的窑车砌筑方式可以极大地降低窑车损毁事故,稳定生产、节约热耗。
4. 装配式隧道窑造价
装配式隧道窑的造价主要由基础工程、窑体标准化单元、风机及风管、燃烧系统、热工监控系统、窑车及运行系统六部分构成。除了窑体标准化单元其他与一般隧道窑类似或接近。因此,其造价取决于窑体标准化单元的结构。
装配式隧道窑的窑顶及窑墙结构一般为: 耐火混凝土预制件及耐热钢组件+保温模块+钢结构及围护,具体可分为以下几种:
窑顶及窑墙可采用:
a、轻质莫来石板+高强耐热不锈钢组件+耐火纤维模块+钢结构+压型钢板;
b、烧结粘土质耐火板+高铝吊杯+耐热钢组件+耐火纤维模块+钢结构+围护压型钢板;
c、粘土质耐火混凝土墙板+膨胀蛭石混凝土+轻质混凝土墙板+钢结构;
d、粘土质耐火混凝土厚板+刚玉质吊杯+耐热钢组件+耐火纤维模块+钢结构+围护压型钢板;
5. 日产600吨(双窑及两组干燥室能力)装配式隧道窑热工及其附属系统
5. 1. 热工系统
5.1.1. 干燥与焙烧热工设备的确定
根据原料及工艺,干燥和焙烧两个工序所需的热工设备分别采用单层隧道干燥室和新型装配式隧道窑。此种工艺的特征为:对于高敏感性原料、寒冷地区、多品种生产线有很好的适应性;生产过程灵活,工艺的调节性较好;能充分利用隧道窑余热并发挥了隧道窑的生产能力。此外,隧道干燥室和隧道窑温差小、热效高、产量大,技术先进,窑体和附属设备及关联构筑物投资少,有利于降低生产成本,减少物耗,提高产品质量,增加经济效益。
干燥与焙烧技术参数
产量指标
本项目确定的生产规模为烧结普通砖600吨/日。干燥和焙烧两工序的累计废品率按10%考虑,年工作日330天,则全年实际成型量200,000吨。(孟加拉烧结普通砖成品尺寸254mm×127mm×67mm)
码车形式及车辆规格尺寸
码坯形式
成型后的湿坯由上架系统自动码放到型钢干燥车上。
干燥车尺寸:长×宽×高 2800×1825×3413mm
干燥车数量:300辆(其中容车26x5x2=260辆)
干燥车码坯:
67mm厚砖码坯:
装载量:22x6x12=1584块 /车(托盘12层,进深6匹砖,切长22块)
折中国砖:2340块/车
窑车码坯
67mm厚码坯计算:
装载量: 4x10x14x6=3360块/车;(每垛4砖长、10砖宽,码高14层,6垛)
折中国砖:4964块/车
码窑密度: 4964/(2.8x3.72x1.9)=251块/米3。
窑车尺寸:长×宽×高 2800×3780×800mm(砌筑后尺寸)
窑车数量:44x2+62=150辆(其中隧道窑窑内容车46x2=92辆)

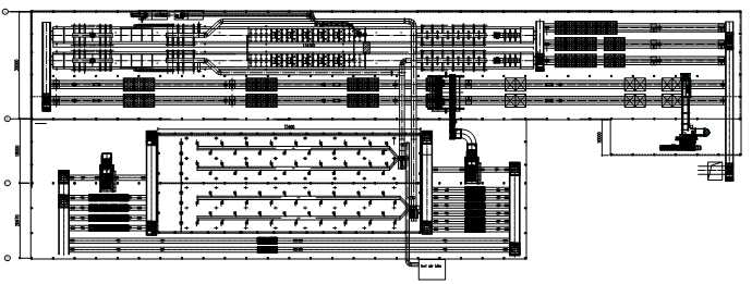
二次码烧干燥室、装配式隧道窑局部平面布置
5.1.2. 干燥室
系统及结构
干燥室采用单层干燥方式 ,其规格为两组(5x2车道)内宽为13.518x2米,内高为3.62米的隧道干燥室。干燥好的砖坯由下架系统自动卸下干燥车,自动摆放在码坯皮带上,进入编运系统,通过码坯机码上窑车。
干燥热源为隧道窑焙烧的制品冷却热和高温烟热,通过外部管路系统供给干燥室,调节系统控制其送风温度及风量大小,确保砖坯干燥质量。干燥室设有完整的送风系统、循环系统、排潮系统、运转系统及检测系统。送排风系统由金属管路、闸阀及相应的风机组成。为防止干燥介质直接冲击坯体,产生开裂,把所有的进风口、排风口设在车与车之间的通道中。由于干燥室的所有风闸及调节口都设置在干燥室外部,给调试工作带来很大方便,也为检修工作创造了良好的条件。每组干燥室配套有2排x9+2排x8=34台塔式送风器(也可用移动式循环风机替代),将管道的干燥介质纵向均匀送到干燥室。
干燥室为框架结构,顶部为现钢筋浇混凝土板,水泥炉渣保温层保温。外围护墙厚393毫米,两组间隔墙254毫米,外敷瓦楞钢板。每组干燥室内部无隔墙,干燥室内的每股道上都放置满载坯体的干燥车,进车端的液压摆渡顶车机按热工制度定时将湿坯车顶入,相邻两道间设置塔式送风器送热对热风进行搅拌、循环,减少干燥室内部上下温差,使干燥过程更加均匀、快速。也可采用底送风,两车之间设置移动风机进行纵、横向循环,在宽度方向对混合气体产生更为强烈的搅拌。
干燥室的主要技术参数(两组)
1)、总长: 73.4米
2)、容车数: 26x5x2=260辆(5x2轨道)
3)、内宽: 27.29m
4)、内高: 3.62m(码高12层,层高250毫米)
5)、每车装载量: 1584块(实心砖)
6)、送风温度: 110~130℃
7)、排风温度: 28℃
8)、排潮湿度: 75~90%
9)、干燥合格率: 95%
10)、干燥周期: 49小时
11)、年产量: 99,000x2吨/年
12)、通道数: 10轨道(两组)
13)、热耗指标: 4200千焦/蒸发每公斤水
14)、干燥车规格: 2800×1825×3413mm
15)、干燥室土建外形尺寸: 73.4×28.076×4.17m(长×宽×高)
5.1.3. 装配式隧道窑
隧道窑系统
本工艺选用平吊顶隧道窑。普通隧道窑设有排烟系统、抽热系统、冷却系统、车下压力平衡系统和测温系统,而装配式隧道窑除设置上述系统之外,还设有低温循环系统、煤粉燃烧系统(有组织控制)、温控系统(既监测又控制)通过对这些系统的调整,使窑内的焙烧制度更精确,更合理。
隧道窑两端均设有端门和截止门,可有效地避免冷空气进入窑内,保证隧道窑始终处于封闭体系稳定了了窑内的压力制度,温度制度和气氛
。

装配式隧道窑工作系统
1- 窑门 2-液压顶车机3-截止门 4-排烟风机5-排烟系统抽风口 6-搅拌气幕送风 7-循环风机
8-高温烟热 9-车底风抽出口10-煤粉燃烧系统(带控制)11-急冷送风 12-冷却余热侧抽风口
13-冷却余热顶抽风口 14-车底压力平衡风机15-窑尾冷却风机16-出口拉引机 17-热风送干燥室
低温循环系统
为了进一步减少预热带上下温差,减少坯体快速升温过程产生的缺陷,同时将干燥后坯体的超量残余水分排除,在预热带设置了循环系统。即将一定温湿度的气体以较大的角度和速度从预热带窑顶鼓入窑内,使窑内热气体上下运动并产生剧烈搅动,达到窑内上下、左右温度均匀的目的。
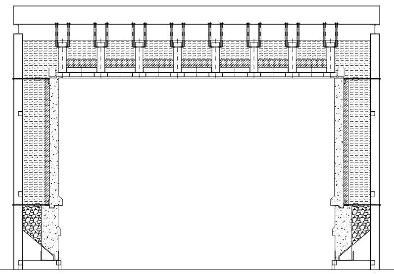
隧道窑结构
隧道窑的窑墙和窑顶可以采用相同的结构,考虑到承担更大的热负荷及热冲击,窑顶吊块比窑墙体吊块要小。基本结构如下:由里向外依次为耐火组件工作层、耐火纤维(或耐火纤维+火山岩棉)模块绝热层、钢结构及压型板围护结构三部分,为彼此镶嵌而成的复合结构。每块耐火墙板配有4 根耐热钢锚固件,每个锚固件各与一根耐热不锈钢件连接,并穿过绝热层与围护结构上的型钢采用螺栓固定;为保证复合墙体具有高性能的绝热性,耐热不锈钢采用先进的“断桥”结构,“断桥”后采用普通钢与外侧钢结构固定。外层彩色压型板板用以维护轻质保温材料不受到破坏,且窑体外形规整美观。无论“宽”窑还是“窄”窑其墙体厚度及高度变化不大,均由集装箱运输;而宽窑的窑顶虽然为装配式,但因其钢梁“超宽”的原因只能将钢梁与窑车等金属结构一起运输,窑顶其他材料仍可采用集装箱运输。3米以内的小型装配式隧道窑的窑顶可以做成与窑墙类似的模块化单元集装箱运输。
平吊顶装配式隧道窑的窑体重量较轻,施工及运行后的沉降很小。窑墙和窑顶之间用耐高温保温材料填充,窑墙工作层不承受窑顶的重量,便于装配并有利于延长窑体寿命。而且采用平吊顶结构后,窑内顶部为平面,便于机械化方法码砖;砖垛和窑顶之间的间隙较小,有利于气流在窑内的合理分布,对制品的烧成极其有利。为保证轻质工作面抵抗高温气体冲刷、侵蚀,提高其热阻,在工作面喷涂红外涂料以保证材料的气密性和结构的耐久性。

装配式隧道窑剖面

装配窑标准单元之一
隧道窑主要技术参数
窑长: 124米
容车数: 44辆
内宽: 3.72米
坯垛高度: 1.83米(127高度码高14层、烧成收缩3%)
内高: 1.9米(顶隙70毫米)
烧成温度: 950℃~1050℃
烧成周期: 44小时
烧成合格率: 95%
热耗指标: 1000~1850千焦/公斤制品
单条年产量: 99,000吨 /年
条数: 1条
隧道窑内规格: 124×3.72×1.9米
隧道窑外形尺寸: 124×4.72×3.25米
隧道窑煤粉燃烧系统
轻柴油、天然气、焦炉煤气是建材窑炉最好的燃料,可是由于其价格和来源制约了企业的使用。在价格低廉、采运便捷的煤炭成为企业的唯一选择的同时,煤炭的洁净和高效利用却成为困扰企业生产的首要问题。八十年代以来虽各种燃烧器如叶轮式投煤器、脉冲式喷煤器等层出不穷,可都因为可靠性、安全性、控制性、产品适应性较差而限制了其使用。各种模式的煤气发生炉也曾流行过一段时间,但是由于环保、安全及能效问题被国家发改委限批甚至叫停。所以,研发系列化的符合我国国情的煤粉燃烧系统并在墙体材料行业推广势在必行。西安瑞泰与意大利公司联合研发的煤粉高效洁净燃烧系统已经用于孟加拉sas公司生产线,该系统可配套在新建生产线亦可用于内燃砖窑炉的技改;不仅可生产普通的烧结砖瓦,而且可用于生产浅色的烧结装饰砖瓦。
a、系统流程


b、系统说明
煤粉配备系统:
箱式给料机:箱式给料机有效长度为6米,箱式给料机要求为皮带式,包含:除铁器、仓壁振动器、可调的星型卸料器
螺旋给料机(连接箱给到喷煤机的机械输送系统):螺旋输送机专为高效输送煤粉而设计,该设备包含:圆形管道或者U型管、带有螺旋的轴、驱动电机及减速机。

煤粉输送系统:
自动上煤系统由电动驱动单元、计量料斗、管路封闭回路组成,带板链条系统,并带有关闭阀的出口。
这些输送链与塑料盘在封闭管内运行,可以输送粒状或粉末状燃料。
该系统由驱动单元驱动,可配备多个装卸点。在每个出口有一个拦截阀,通过拦截阀可以将煤粉灌装到燃烧器的料斗。
整套煤粉输送系统可以实现自动控制,也可以手动控制单个设备。总控制面板包含所有安全项目。
喷煤系统:
带自研磨喷煤系统GCS 12 (6+6) 5套,分2排布置。每组喷煤系统包含:
• 特殊设计的支架可以将喷煤系统安装在柴油烧嘴GGT-D上面。
• 硬钢制造的离心风机可以将煤粉均匀地分到每个燃烧点中
• 自动控制面板
• 连接喷煤机到喷枪的软管,以及软管前端的手动阀门
• 最后一部分喷枪是由耐高温钢制作,每个喷枪带有倾角调节器和监测点
• 每个支管都带有阀门,可以调节每个燃烧点的出煤量(通常5-12kg/h)
• 电控触摸屏包含温度调节器及热电偶
• 每个燃烧点的最大煤粉流量 12 Kg/hour
• 带研磨系统
c、技术参数
螺旋给料机:
设备型号:ZN363 700
螺旋输送机直径:T22
工作倾斜度:29.5°
进出口中心距离:8200mm
电压:400v
频率:50Hz
除铁器:
型号:500x500x160 mm
煤粉输送系统:
管直径:114毫米
配置:闭路
总长度:120米的完整电路(包括返回)
电机功率:4千瓦
电气安全:IP 55
电气电压:400伏-三相- 50赫兹
驱动单元体:碳钢
驱动轮:铝
链条应变:自动
辅助元件电压:24伏- 50赫兹
喷煤系统:
每个燃烧点的出煤量:5-12kg/h
螺旋分配器功率:0.37kw
风机功率:4kw。
煤粉要求:最大燃煤颗粒尺寸:5mm;
水分:≤5%;
含硫量:≤4%;
HGI (哈氏可磨性指数):> 50
6. 结论及建议
6.1. 结论
a、新型装配式隧道窑具有完善的工作系统和安全的结构,长寿命、大产量、模块化,是烧结硅酸盐制品热工设备发展的方向;
b、装配式隧道窑的低能耗、低温室气体排放、低污染适应了节能环保的生产规则;
c、装配式隧道窑集成运输、快捷安装、快速达产,节约了投资、降低了工程风险。
6.2. 建议
a、干燥是烧结墙材普遍存在的“短板”,为实现生产过程的优质、高产就必须提高干燥的可靠性。大产量的生产线最好采用二次码烧工艺;有条件的企业尽量应采用单层码坯的隧道干燥室;
b、为提高隧道窑能效,有条件的企业可以采用天然气、焦炉煤气作为热源。但是考虑到国情及企业成本,最好采用 “煤炭高效洁净燃烧系统”,不仅可以生产出高品质、多品种的装饰砖瓦,而且完全满足环保和能耗国标。
版权所有:【河南欧帕工业机器人有限公司】
本站所有内容受知识产权保护 未经许可严禁转载、复制或建立镜像
中心地址:河南省郑开大道官渡组团 联系电话:0371-60863533
豫ICP备14017777号-3 营业执照 河南省互联网违法和不良信息举报中心

