
文字来自建筑师。哈佛设计学院(GSD)的绿色建筑和城市中心(CGBC)今日宣布了 HouseZero 零能耗建筑实验室的竣工。该建筑是对其在1940年代早期的位于剑桥的总部建筑的适应性改造,目标是变为一处颇具雄心的生活实验室,和一个为了实现超高效能耗的节能原型,以帮助我们以新的方式理解建筑。零能耗建筑实验室的设计从一开始就带着一系列的雄心和目标,其中包括近乎零能耗的供暖和制冷、零能耗供电采光、100%自然通风,以及零碳排放。建筑致力于在其生命周期中产生比用于修复它和后续操作消耗的能量更多的能量。斯内赫塔事务所为该项目的主持建筑事务所而挪威的斯堪雅集团主持能源工程设计。

借力这个兼具工作室和研究工具的零能耗实验室,CGBC利用来自零能耗实验室每个组件中嵌入的成百上千的传感器的数百万个数据点来持续监控其性能。这些采集的数据也将为哈佛大学的研究人员提供一个前所未有的机会,理解复杂的建筑行为。这些数据也会反过来推动包括计算机模拟在内的研究,帮助CGBC开发新系统和数据驱动的学习算法,以促进能源效率、健康和可持续性的提高。

“零能耗实验室灵活的、数据驱动的基础设施使我们能够进一步研究建筑行为,并设计出下一代超高效结构。”Ali Malkawi如此说道,他是CGBC的创始人和主任,也是零能耗实验室项目的创始人和主持者,“通过创建一个原型、一个能够长期研究的设施,我们希望能够提高人们对超高效改造的兴趣,并激发建筑设计和运营的重大转变。”

“哈佛零能耗实验室是一个在能耗效率和革新设计方面都超凡卓越的物理实例,”哈佛设计学院院长以及亚历山大维多利亚威利讲席设计专业教授Mohsen Mostafavi说道,“作为一个生活实验室,它为哈佛的学生和研究人员在设计世界各地的下一代可持续建筑及城市提供了无与伦比的、颇具创新的探索和研究设施。”

作为一个原型,零能耗实验室致力于解决当今世界最大的能源问题——低效的现有建筑。美国的建筑存量占能源消耗的40%左右,其中住房占近四分之一。总计1.136亿个家庭每年需要花费超过2300亿美元用于供暖、制冷和供电。对这个建筑存量中能源效率低下的问题,将为遏制其对气候变化的影响提供巨大的机会。为了超高效的改造策略做准备,零能耗实验室为减少能源使用、节约成本创造了一纸蓝图。
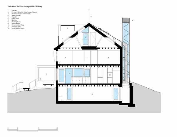
“零能耗实验室展示了如何通过优化现有的技术来实现前所未有的建筑性能,从而解决这个问题,” Mohsen Mostafavi 教授说,“零能耗实验室要求我们重新思考建筑设计和操作的惯性,以提高全生命周期的使用效率效率以及居住者的生活质量。”零能耗实验室的超高效率在于尖端技术与现有低技术建筑设计方案应用的交叉。自然通风就是一例。它由一个窗户驱动系统控制,该系统采用了复杂的系统和传感器阵列来自动开启和关闭窗户,以保持全年高质量的室内环境。建筑本身将力求尽可能的舒适,而窗户总是可以手动打开,确保个人的体感舒适仍与主观体验紧密相系。
零能耗实验室将被用于研究如何从根本上重新定义结构与自然环境的联系、以及它对自然环境的回应,以促进能耗效率以及环境健康。建筑的围护结构和材料没有将建筑塑造为一个“密闭的盒子”,而是以一种更加自然的方式与季节和外部环境相互作用。建筑会持续地进行自我调整,有时甚至是以分钟计,来实现使用者的建筑热环境的舒适。

作为一个生活实验室,它为该中心的研究人员提供激发灵感的空间,同时也受这些研究人员控制和适应。随着时间的推移,CGBC的研究有可能通过广泛的分享和修正零能耗实验室的研究成果、以及在全球新建筑和未来建筑的翻修中推进的数据驱动的建筑研究,极大地减少建筑行业对环境的影响。
版权所有:【河南欧帕工业机器人有限公司】
本站所有内容受知识产权保护 未经许可严禁转载、复制或建立镜像
中心地址:河南省郑开大道官渡组团 联系电话:0371-60863533
豫ICP备14017777号-3 营业执照 河南省互联网违法和不良信息举报中心

